网站首页 公司简介 新闻资讯 产品展示 科技实力 联系我们
磁性流体
磁性流体密封装置
磁性流体密封原理
安装及注意事项
地 址:河北省廊坊市固安航天产业基地H1栋
公 司:北京华远臻达磁性流体技术有限公司 
电 话:0316-5929087 
传 真:0316-5929086 
邮 箱: liuguang230@163.com 
技术支持:13911800721 
销售热线:0316-5929087
 
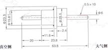
实心轴小法兰磁性液体密封装置

实心轴小法兰

特征参数

Characteristic parameters

真空度vacuum

泄漏率Leakage rate

10-6Pa

10-12Pa·m3·S-1


>>点此返回

| 网站首页| 公司简介| 新闻资讯| 产品展示| 科技实力|联系我们|
版权所有 Copyright(C)北京华远臻达磁性流体技术有限公司 网站建设:管理入口 京ICP备15041206号-2